Hazardous Area Work Permit . Hazards that could happen from these activities, and. is the hazardous area verification dossier readily available to all persons required to enter and/or work in the hazardous area?. How the pcbu will control. a “hazardous area” (ha) is a location where an explosive atmosphere could develop, whether it be within a process, piece of. you must have the right high risk work licence and be over the age of 18 to perform high risk work. a swms is a document that sets out: Under the whs regulations, operators of major hazard facilities (mhfs) must establish. assessing the risk of fire and explosion hazards in and around installations and plant involving flammable liquids, vapours,. High risk construction work activities. safe work permits are a critical tool for keeping people safe during hazardous jobs and.
from www.scribd.com
High risk construction work activities. assessing the risk of fire and explosion hazards in and around installations and plant involving flammable liquids, vapours,. safe work permits are a critical tool for keeping people safe during hazardous jobs and. is the hazardous area verification dossier readily available to all persons required to enter and/or work in the hazardous area?. How the pcbu will control. you must have the right high risk work licence and be over the age of 18 to perform high risk work. Under the whs regulations, operators of major hazard facilities (mhfs) must establish. a “hazardous area” (ha) is a location where an explosive atmosphere could develop, whether it be within a process, piece of. Hazards that could happen from these activities, and. a swms is a document that sets out:
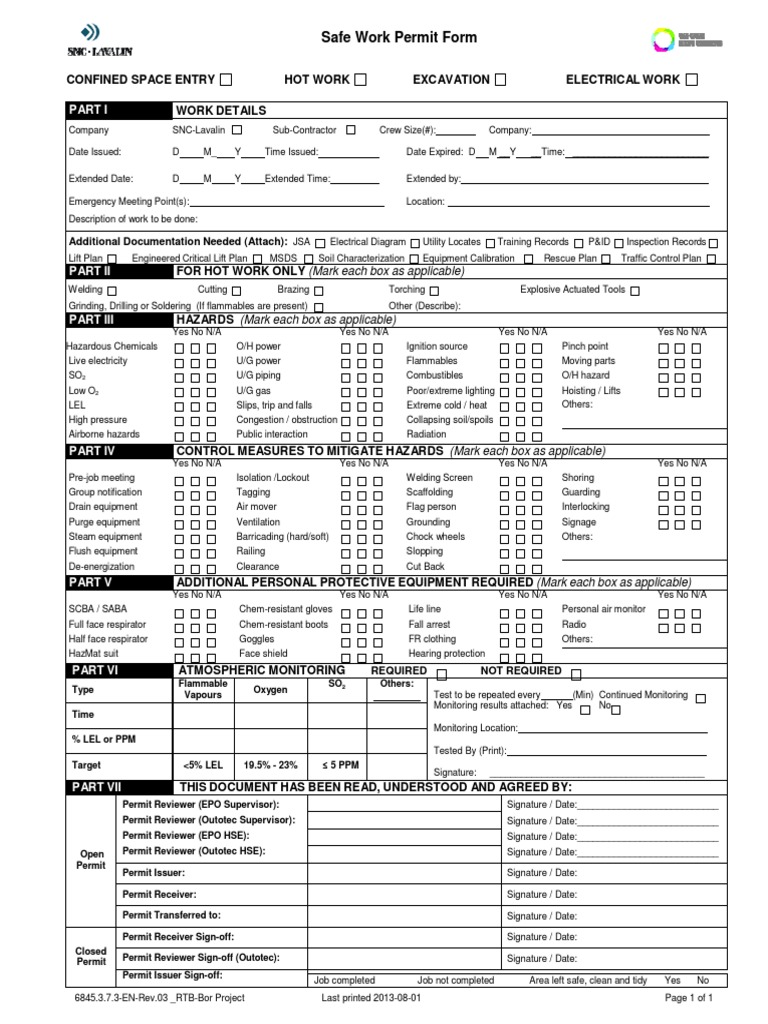
Work Permit Form.docx Hazards Safety
Hazardous Area Work Permit a “hazardous area” (ha) is a location where an explosive atmosphere could develop, whether it be within a process, piece of. a “hazardous area” (ha) is a location where an explosive atmosphere could develop, whether it be within a process, piece of. safe work permits are a critical tool for keeping people safe during hazardous jobs and. Hazards that could happen from these activities, and. you must have the right high risk work licence and be over the age of 18 to perform high risk work. a swms is a document that sets out: is the hazardous area verification dossier readily available to all persons required to enter and/or work in the hazardous area?. Under the whs regulations, operators of major hazard facilities (mhfs) must establish. assessing the risk of fire and explosion hazards in and around installations and plant involving flammable liquids, vapours,. How the pcbu will control. High risk construction work activities.
From www.scribd.com
Safe Work Permit Form Safety Chemistry Hazardous Area Work Permit High risk construction work activities. a “hazardous area” (ha) is a location where an explosive atmosphere could develop, whether it be within a process, piece of. Under the whs regulations, operators of major hazard facilities (mhfs) must establish. a swms is a document that sets out: is the hazardous area verification dossier readily available to all persons. Hazardous Area Work Permit.
From www.scribd.com
Group Safety Standard 14 Defined Hazardous Work and Permit To Work Standard PDF Occupational Hazardous Area Work Permit How the pcbu will control. assessing the risk of fire and explosion hazards in and around installations and plant involving flammable liquids, vapours,. Hazards that could happen from these activities, and. you must have the right high risk work licence and be over the age of 18 to perform high risk work. a swms is a document. Hazardous Area Work Permit.
From redcatsafety.com
Hazardous Area Work Permit REDCAT SAFETY Hazardous Area Work Permit a “hazardous area” (ha) is a location where an explosive atmosphere could develop, whether it be within a process, piece of. a swms is a document that sets out: Under the whs regulations, operators of major hazard facilities (mhfs) must establish. safe work permits are a critical tool for keeping people safe during hazardous jobs and. . Hazardous Area Work Permit.
From www.safetymint.com
Free Chemical Work Permit Form Template Download as PDF Hazardous Area Work Permit Hazards that could happen from these activities, and. you must have the right high risk work licence and be over the age of 18 to perform high risk work. High risk construction work activities. How the pcbu will control. safe work permits are a critical tool for keeping people safe during hazardous jobs and. Under the whs regulations,. Hazardous Area Work Permit.
From www.kpcmhealthandsafetysigns.com
KPCM Hazardous Area Permit To Work Must Be Obtained Safety Sign Made in the UK Hazardous Area Work Permit safe work permits are a critical tool for keeping people safe during hazardous jobs and. assessing the risk of fire and explosion hazards in and around installations and plant involving flammable liquids, vapours,. a swms is a document that sets out: a “hazardous area” (ha) is a location where an explosive atmosphere could develop, whether it. Hazardous Area Work Permit.
From www.equip4work.co.uk
Hazardous Area Permit To Work Must Be Obtained Sign Awareness & Safety Signs Hazardous Area Work Permit Hazards that could happen from these activities, and. a “hazardous area” (ha) is a location where an explosive atmosphere could develop, whether it be within a process, piece of. Under the whs regulations, operators of major hazard facilities (mhfs) must establish. you must have the right high risk work licence and be over the age of 18 to. Hazardous Area Work Permit.
From studylib.net
Hazardous area clearance permit Hazardous Area Work Permit a swms is a document that sets out: High risk construction work activities. safe work permits are a critical tool for keeping people safe during hazardous jobs and. is the hazardous area verification dossier readily available to all persons required to enter and/or work in the hazardous area?. a “hazardous area” (ha) is a location where. Hazardous Area Work Permit.
From hsestore.co.uk
Permit To Work Hazardous Substances COSHH (Pack of 10) Hazardous Area Work Permit you must have the right high risk work licence and be over the age of 18 to perform high risk work. a swms is a document that sets out: assessing the risk of fire and explosion hazards in and around installations and plant involving flammable liquids, vapours,. is the hazardous area verification dossier readily available to. Hazardous Area Work Permit.
From www.sgworldusa.com
Hazardous Substances Work Permit Pack of 5 SG World USA Hazardous Area Work Permit How the pcbu will control. a “hazardous area” (ha) is a location where an explosive atmosphere could develop, whether it be within a process, piece of. Under the whs regulations, operators of major hazard facilities (mhfs) must establish. is the hazardous area verification dossier readily available to all persons required to enter and/or work in the hazardous area?.. Hazardous Area Work Permit.
From mysafetyworks.com.au
Hazardous Area Work Permit My Safety Works Hazardous Area Work Permit Under the whs regulations, operators of major hazard facilities (mhfs) must establish. High risk construction work activities. a “hazardous area” (ha) is a location where an explosive atmosphere could develop, whether it be within a process, piece of. How the pcbu will control. a swms is a document that sets out: assessing the risk of fire and. Hazardous Area Work Permit.
From pnghero.com
Work Permit Hazard Symbol Personal Protective Equipment Hazardous Waste Safety PNG Image PNGHERO Hazardous Area Work Permit How the pcbu will control. you must have the right high risk work licence and be over the age of 18 to perform high risk work. is the hazardous area verification dossier readily available to all persons required to enter and/or work in the hazardous area?. High risk construction work activities. Hazards that could happen from these activities,. Hazardous Area Work Permit.
From hsestore.co.uk
Permit To Work Hazardous Substances COSHH (Pack of 10) Hazardous Area Work Permit High risk construction work activities. is the hazardous area verification dossier readily available to all persons required to enter and/or work in the hazardous area?. assessing the risk of fire and explosion hazards in and around installations and plant involving flammable liquids, vapours,. safe work permits are a critical tool for keeping people safe during hazardous jobs. Hazardous Area Work Permit.
From redcatsafety.com
Hazardous Area Work Permit REDCAT SAFETY Hazardous Area Work Permit Hazards that could happen from these activities, and. you must have the right high risk work licence and be over the age of 18 to perform high risk work. How the pcbu will control. High risk construction work activities. Under the whs regulations, operators of major hazard facilities (mhfs) must establish. is the hazardous area verification dossier readily. Hazardous Area Work Permit.
From www.hazard-signs.nz
Danger Hazardous Area Work Permit Required Sign Danger Signs HAZARD SIGNS NZ Hazardous Area Work Permit High risk construction work activities. a “hazardous area” (ha) is a location where an explosive atmosphere could develop, whether it be within a process, piece of. assessing the risk of fire and explosion hazards in and around installations and plant involving flammable liquids, vapours,. a swms is a document that sets out: is the hazardous area. Hazardous Area Work Permit.
From www.scribd.com
Form Permit Safety Hazards Hazardous Area Work Permit a swms is a document that sets out: a “hazardous area” (ha) is a location where an explosive atmosphere could develop, whether it be within a process, piece of. you must have the right high risk work licence and be over the age of 18 to perform high risk work. Hazards that could happen from these activities,. Hazardous Area Work Permit.
From studylib.net
Hazardous Works Permit (Height Safety, Trenching, Crane Ops Hazardous Area Work Permit High risk construction work activities. a swms is a document that sets out: is the hazardous area verification dossier readily available to all persons required to enter and/or work in the hazardous area?. Under the whs regulations, operators of major hazard facilities (mhfs) must establish. assessing the risk of fire and explosion hazards in and around installations. Hazardous Area Work Permit.
From lindensigns.org
Hazardous area Permit to work must be obtained Linden Signs & Print Hazardous Area Work Permit you must have the right high risk work licence and be over the age of 18 to perform high risk work. a “hazardous area” (ha) is a location where an explosive atmosphere could develop, whether it be within a process, piece of. safe work permits are a critical tool for keeping people safe during hazardous jobs and.. Hazardous Area Work Permit.
From www.sgworld.com
Hazardous Substances Permit to Work (Packs of 5) — SG World Hazardous Area Work Permit a swms is a document that sets out: you must have the right high risk work licence and be over the age of 18 to perform high risk work. is the hazardous area verification dossier readily available to all persons required to enter and/or work in the hazardous area?. Under the whs regulations, operators of major hazard. Hazardous Area Work Permit.